About 86 Tamarack Drive
Calling all investors and DIYers! This 3-bedroom home in a prime HRM location offers incredible potential at an affordable price point of under $425K. Lovingly maintained by the same owner for many years, the property is in overall good conditions but does require some repairs & updates. The furnace and oil tank will need to be replaced, and a few windows have broken seals. That said, the bones are solid, and with a bit of work, this home could really shine. Just minutes from all amenities, this is a fantastic opportunity in a highly convenient are.
Features of 86 Tamarack Drive
| MLS® # | 202516923 |
|---|---|
| Price | $420,000 |
| Bedrooms | 3 |
| Bathrooms | 1.50 |
| Full Baths | 1 |
| Half Baths | 1 |
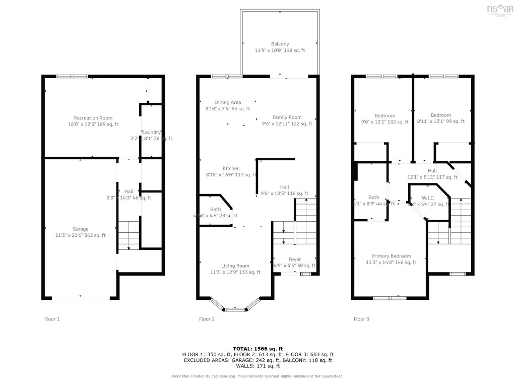
| Square Footage | 1,737 |
| Acres | 0.06 |
| Year Built | 1997 |
| Type | Residential |
| Sub-Type | Single Family Residence |
| Status | Closed |
| Date Sold | August 18th, 2025 |
Community Information
| Address | 86 Tamarack Drive |
|---|---|
| Area | Halifax - Dartmouth |
| District | 7-Spryfield |
| Sub-District | 7-A |
| City | Halifax |
| County | Halifax |
| Province | NS |
| Postal Code | B3N 3H1 |
Amenities
| Utilities | Electric, Electricity Connected |
|---|---|
| Parking Spaces | 1 |
| Parking | Attached, Single, Paved |
| # of Garages | 1 |
| Is Waterfront | No |
| Has Pool | No |
Interior
| Interior Features | High Speed Internet |
|---|---|
| Appliances | Stove, Dishwasher, Dryer, Washer, Refrigerator |
| Heating | Baseboard, Ductless |
| Fireplace | No |
| # of Stories | 2 |
| Stories | 2 Storey |
| Has Basement | Yes |
| Basement | Finished, Other |
Exterior
| Lot Description | Under 0.5 Acres, Cleared, Landscaped |
|---|---|
| Roof | Asphalt |
| Construction | Brick, Vinyl Siding |
| Foundation | Concrete Perimeter |
School Information
| Elementary | Chebucto Heights Elementary School |
|---|---|
| Middle | Elizabeth Sutherland School |
| High | JL Ilsley High School |
Additional Information
| Zoning | RDD |
|---|
Listing Details
| Office | Royal LePage Atlantic |
|---|
