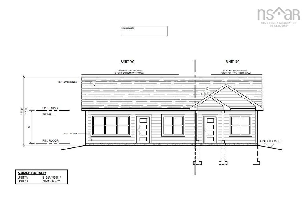
About 13 140 Murphys Road
Two unit bungalow on slab, built by Marchand Homes
Features of 13 140 Murphys Road
MLS® # | 202315041 |
---|---|
Price | $642,763 |
Bedrooms | 3 |
Bathrooms | 2.00 |
Full Baths | 2 |
Square Footage | 1,622 |
Acres | 1.91 |
Type | Residential |
Sub-Type | Duplex |
Style | Bungalow |
Status | Closed |
Date Sold | September 11th, 2025 |
Community Information
Address | 13 140 Murphys Road |
---|---|
Area | Halifax - Dartmouth |
District | 105-East Hants/Colchester West |
Sub-District | 105-A |
City | Wyses Corner |
County | Halifax |
Province | NS |
Postal Code | B0N 1Y0 |
Amenities
Utilities | Electric, Electricity Connected, Phone Connected |
---|---|
Parking | No Garage, Gravel |
Is Waterfront | No |
Has Pool | No |
Interior
Appliances | None |
---|---|
Heating | Baseboard, Ductless |
Fireplace | No |
Has Basement | No |
Basement | None |
Exterior
Lot Description | 1 to 2.99 Acres, Partially Cleared, Not Landscaped, Level |
---|---|
Roof | Asphalt |
Construction | Vinyl Siding |
Foundation | Concrete Perimeter |
Additional Information
Zoning | MU |
---|
Listing Details
Office | Sutton Group Professional Realty |
---|