About 119 Colonial Crescent
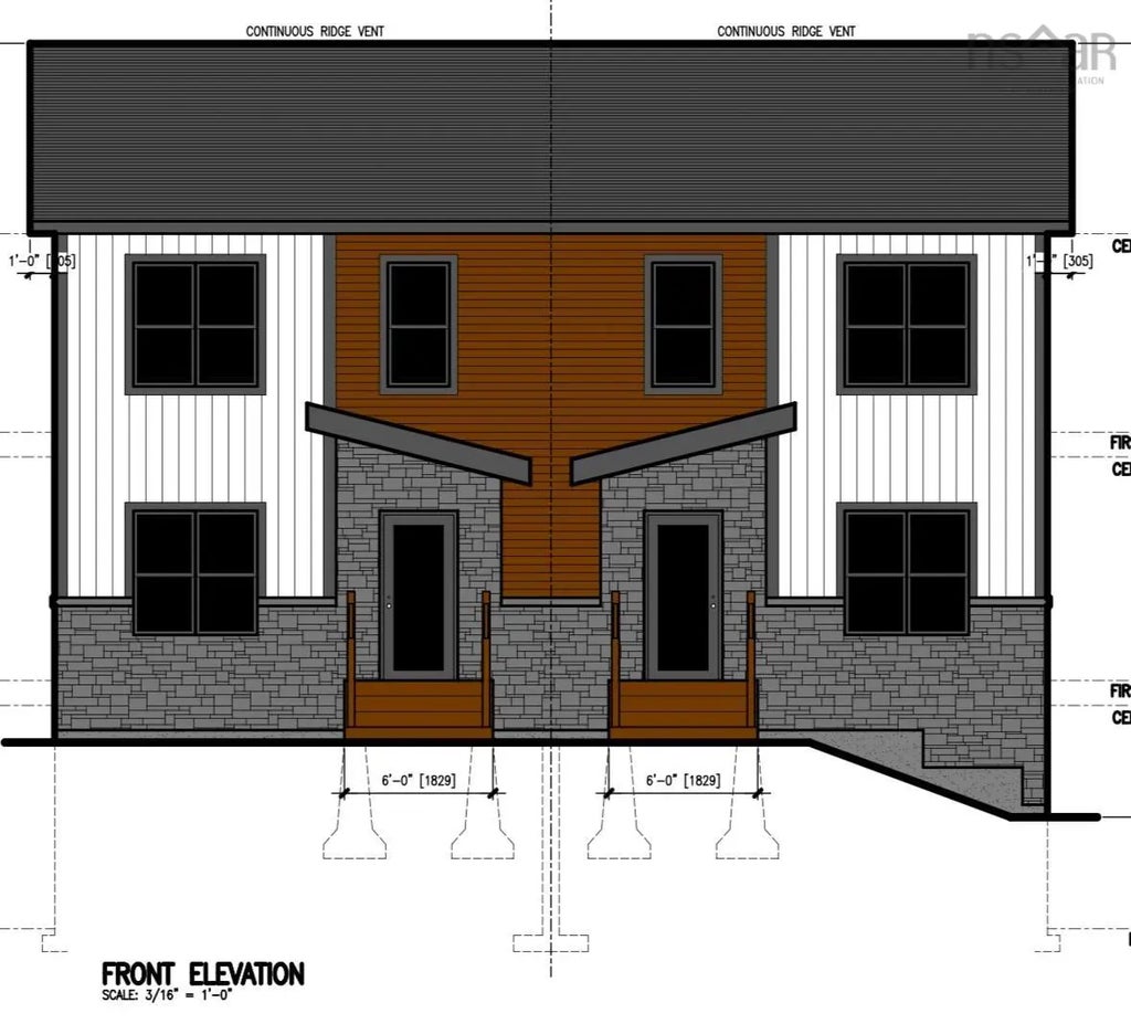
The Eagles on Colonial, this newly constructed legal duplex offers a perfect combination of functionality and investment potential. The upper unit spans two floors, with the first floor featuring a spacious living room, a dining area, a modern kitchen, a powder room and access to a private deck. The second floor includes three generously sized bedrooms, including a primary suite with an ensuite, an additional full bathroom, and a convenient laundry room. The lower unit, with its own separate entrance, provides tow bedrooms, a full bathroom, a kitchen, and in-unit laundry. Designed with practically and quality in mind, the property includes two power meters, two hot water tanks, and two ventilation systems, along with enhanced insulation between the units for added comfort and noise reduction. This property is an excellent opportunity for homeowners or investors seeking a modern and efficient living space. Rendering is not accurate , Buyers need to confirm the exterior based on the floor plans
Features of 119 Colonial Crescent
MLS® # | 202501700 |
---|---|
Price | $679,900 |
Bedrooms | 5 |
Bathrooms | 3.50 |
Full Baths | 3 |
Half Baths | 1 |
Square Footage | 2,400 |
Acres | 0.08 |
Type | Residential |
Sub-Type | Single Family Residence |
Status | Closed |
Date Sold | September 25th, 2025 |
Community Information
Address | 119 Colonial Crescent |
---|---|
Area | Halifax - Dartmouth |
District | 7-Spryfield |
Sub-District | 7-C |
City | Halifax |
County | Halifax |
Province | NS |
Postal Code | B3R 0H8 |
Amenities
Utilities | Electric, Cable Connected, Electricity Connected, Other |
---|---|
Parking | No Garage, Paved |
Is Waterfront | No |
Has Pool | No |
Interior
Interior Features | Ensuite Bath, Secondary Suite |
---|---|
Appliances | None |
Heating | Baseboard, Ductless |
Fireplace | No |
# of Stories | 2 |
Stories | 2 Storey |
Has Basement | Yes |
Basement | Full, Finished, Walk-Out Access |
Exterior
Lot Description | Under 0.5 Acres, Cleared, Partial Landscaped |
---|---|
Roof | Asphalt |
Construction | Brick, Vinyl Siding |
Foundation | Concrete Perimeter |
School Information
Elementary | Rockingstone Heights School |
---|---|
Middle | Rockingstone Heights School |
High | JL Ilsley High School |
Additional Information
Zoning | RDD |
---|
Listing Details
Office | RE/MAX Nova |
---|