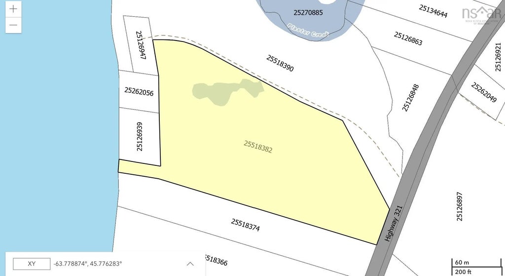
24-5 Highway 321 Highway, Roslin, NS

$182,850

Previous Next

9.46

Acres

About 24-5 Highway 321 Highway

How about a lazy day on the river, we have five locations to choose from on the River Philip. Located only 9km to Oxford, 16 km to Pugwash. These lots have a mixed forest, creating privacy on each lot. Design it how you want to live but know on the other side of the tress are some magnificent views up and down the river. The lots vary in size from 9 acres with 50 feet of frontage to 223 feet of frontage with 4 acres. All lots are surveyed and ready to go. The channel of the river runs down this side of the bank, a boat might be in order so you can enjoy all of the views up and down the river. Forget flooding, you sit above the river which helps create those wonderful views. Besides boating, enjoy the fishing, canoeing, kayaking, the river is tidal, you get the aroma of the salt air as it comes and goes. Birds, nature and wildlife, they all like it here and you are invited in to join them in their wilderness paradise. No constraints or covenants, enjoy it how you will.

Features of 24-5 Highway 321 Highway

MLS® # 202422966
Price $182,850
Acres 9.46
Type Land
Sub-Type Unimproved Land
Status Active

Community Information

Address 24-5 Highway 321 Highway
Area Northern Region
District 102N-North of Hwy 104
Sub-District N/A
City Roslin
County Cumberland
Province NS
Postal Code B0M 1P0

Amenities

Utilities None
Parking Other
Is Waterfront Yes
Waterfront River Front
Has Pool No

Interior

Fireplace No
Has Basement No

Exterior

Lot Description Wooded, 3 to 9.99 Acres

Additional Information

Zoning Res

Listing Details

OfficeStarscape Realty Ltd.

Listing Map

Request a Showing

Provide a valid email address.
When would you like to view this property?