110 Gaspereau Avenue, Wolfville, NS

$129,000

Previous Next

0.21

Acres

About 110 Gaspereau Avenue

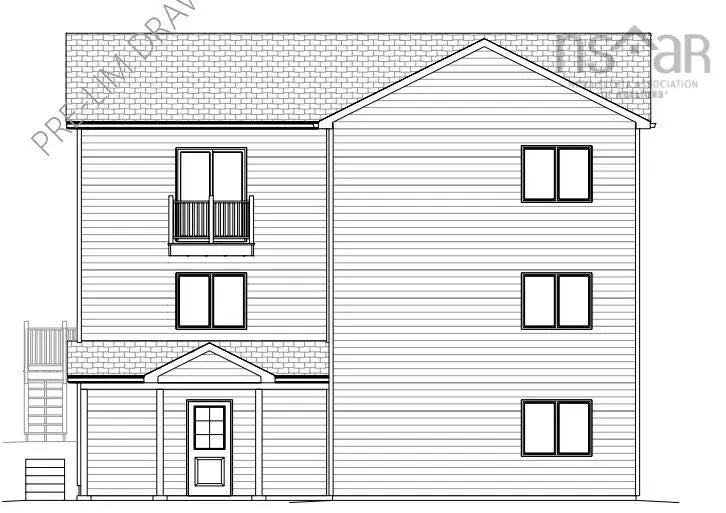
Turnkey Wolfville Development Opportunity – R3 Zoned Lot with Approved Site Plan SITE PLAN APPROVED by the Town of Wolfville. Buyer can proceed with the seller’s concept design (3 x 4-bed / 2-bath student rental units, 12 beds total) or explore their own custom design within the approved house dimensions. +All major planning work complete – building plans, site plan, landscape plan, and Phase 1 Environmental included and ready to transfer. +Zoned R3 – flexible use options including triplex, multi-unit, or townhouse +Prime location – minutes from Acadia University and downtown Wolfville. +Shovel-ready – start building once the building permit is issued. Seller is divesting to focus on larger projects. An excellent opportunity for investors seeking a ready-to-build project in a high-demand rental market. Listing agent is licensed with NSREC and owner of the selling company.

Features of 110 Gaspereau Avenue

MLS® # 202506974
Price $129,000
Acres 0.21
Type Land
Sub-Type Unimproved Land
Status Active

Community Information

Address 110 Gaspereau Avenue
Area Annapolis Valley
District Kings County
Sub-District V2
City Wolfville
County Kings
Province NS
Postal Code B4P 2E1

Amenities

Utilities Electricity Connected
Parking None
Is Waterfront No
Has Pool No

Interior

Fireplace No
Has Basement No

Exterior

Lot Description Under 0.5 Acres

Additional Information

Zoning R3

Listing Details

OfficeAir Realty Limited

Listing Map

Request a Showing

Provide a valid email address.
When would you like to view this property?