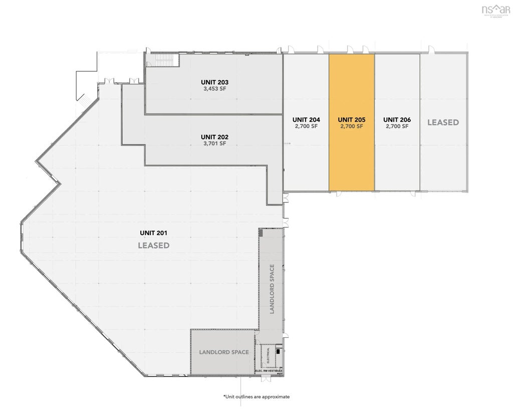
205 70 First Lake Drive, Lower Sackville, NS

2,700

Square feet

13.25

Acres

About 205 70 First Lake Drive

Take advantage of 2,700 SF of retail space in a newly renovated building with new HVAC and electrical systems, ideally situated in a high-visibility, high-traffic area near Sobeys, Tim Hortons, and NSLC. The location offers convenient on-site parking to enhance customer access. Additional units are also available, with the option to combine spaces to meet your business needs—an exceptional opportunity for businesses looking to thrive in a vibrant, thriving community!

Features of 205 70 First Lake Drive

MLS® # 202525642
Square Footage 2,700
Acres 13.25
Type Commercial Sale
Sub-Type Retail
Status Active

Community Information

Address 205 70 First Lake Drive
Area Halifax - Dartmouth
District 25-Sackville
Sub-District 25-F
City Lower Sackville
County Halifax
Province NS
Postal Code B4C 3E4

Amenities

Parking Parking Spaces(s), Paved
Is Waterfront No
Has Pool No

Interior

Heating Other Heating/Cooling
Cooling Other Heating/Cooling
Fireplace No
Has Basement No

Exterior

Lot Description 10 to 49.99 Acres
Roof Other

Additional Information

Zoning C-2 - GENERAL BUSINESS

Listing Details

OfficeHalifax Commercial Real Estate Advisors Limited

Listing Map

Request a Showing

Provide a valid email address.
When would you like to view this property?