About 27 Dumbarton Avenue
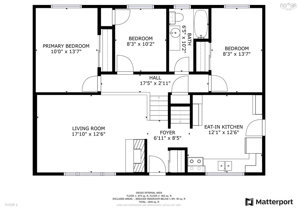
A great opportunity to take over this project and either flip, rent or live in it when complete! Located in a sought after neighbourhood with great resale values, this home is waiting for its new family to make it their own. Don’t let the hard work stop you from viewing this property. New windows and doors have been installed. New electrical panel and exterior insulation has been purchased and will be left for the buyer to install. This home needs the new owner to take over the renovation the seller didn’t have time to complete. This back split home has hardwood floors and a great layout with an eat in kitchen, large living room and open foyer on the main level. The upper level which overlooks the main floor features the primary bedroom, two additional bedrooms and updated 4-piece bath. The basement area is designed for a 4th bedroom, 2- piece bath, laundry room and large rec room. This property is being sold as is and is priced accordingly to reflect work required.
Features of 27 Dumbarton Avenue
MLS® # | 202222785 |
---|---|
Price | $265,000 |
Bedrooms | 4 |
Bathrooms | 1.50 |
Full Baths | 1 |
Half Baths | 1 |
Square Footage | 1,470 |
Acres | 0.19 |
Year Built | 1967 |
Type | Residential |
Sub-Type | Single Family Residence |
Status | Closed |
Date Sold | October 31st, 2022 |
Community Information
Address | 27 Dumbarton Avenue |
---|---|
Area | Halifax - Dartmouth |
District | 17-Woodlawn, Portland Estates, Nantucket |
Sub-District | 17-A |
City | Dartmouth |
County | Halifax |
Province | NS |
Postal Code | B2X 1Z7 |
Amenities
Utilities | Cable Connected, Electricity Connected, Phone Connected |
---|---|
Parking | No Garage, Paved |
Is Waterfront | No |
Has Pool | No |
Interior
Interior Features | High Speed Internet |
---|---|
Appliances | Stove, Dryer, Washer, Refrigerator |
Heating | Forced Air |
Fireplace | Yes |
Fireplaces | Fireplace(s) |
Stories | Multi/Split |
Has Basement | Yes |
Basement | Full |
Exterior
Lot Description | Under 0.5 Acres, Landscaped, Level |
---|---|
Roof | Asphalt |
Construction | Other |
Foundation | Block |
School Information
Elementary | Ian Forsyth Elementary School |
---|---|
Middle | Caledonia Junior High School |
High | Woodlawn High |
Additional Information
Zoning | R-1 - RESIDENTIAL LOW DENSITY |
---|
Listing Details
Office | Royal LePage Atlantic |
---|